à partir de €/mois
pièce
chambre
habitables
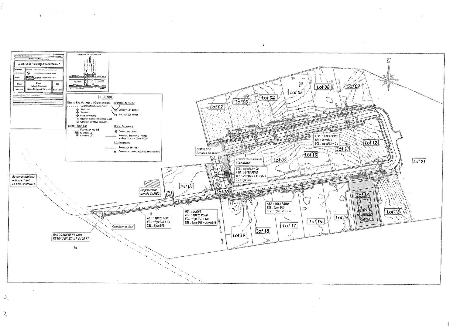
À vendre terrain de 768 m2 constructible à PETIT-CANAL proche de la plage de ANSE MAURICE
A Vendre parcelle de Terrain à Bâtir de 768 m2 à Petit-Canal, Guadeloupe
Nestenn Guadeloupe, votre partenaire immobilier de confiance, vous propose une magnifique parcelle de terrain à bâtir au sein d'un lotissement neuf et exclusif composé de 18 lots, situé à Petit Canal, à quelques pas de la plage de Anse Maurice.
Localisation Idéale
Ce terrain profite d'un emplacement privilégié, à proximité immédiate des restaurants, commerces et de toutes les commodités. Un cadre de vie harmonieux, alliant confort et qualité de vie, vous y attend.
Un Lotissement Haut de Gamme
Privatisé et sécurisé par un portail électrique pour une tranquillité d'esprit optimale.
Terrain viabilisé avec raccordements eau et électricité disponibles à l'entrée du terrain.
Quartier résidentiel calme et préservé, offrant un cadre de vie exceptionnel et rare.
Circulation à sens unique pensée pour améliorer la fluidité et la sécurité des déplacements.
Un Investissement d'Exception
Que vous envisagiez une résidence principale, une résidence secondaire ou un investissement locatif, ce terrain représente une opportunité unique dans un environnement d'exception.
Caractéristiques du Terrain
Surface : 768 m²
Prix de vente : 131 200 € HAI (Honoraires d'Agence Inclus)*
*Honoraires à la charge du vendeur
Contactez-nous dès aujourd'hui pour organiser une visite personnalisée ou pour toute information complémentaire, n'hésitez pas à contacter Nestenn Guadeloupe au 05 90 57 00 33 ou Georges RENARD au 06 90 35 42 48.
Les informations relatives aux risques auxquels ce bien est exposé sont disponibles sur le site Géorisques : www.georisques.gouv.fr.
Caractéristiques et informations
768 m² habitables
Entre 730 m² et 807 m² de terrain
Année de construction : 2025
Construction : 2025
Localisation
Je simule mon prêt
€
€
ans
€
par mois
Dont assurance : € / mois
Frais de notaire (8%) : €
Taux moyen constaté %
Un crédit vous engage et doit être remboursé. Vérifiez vos capacités de remboursement avant de vous engager.
* Cette mention est donnée à titre d'information éditoriale sur la base du baromètre des taux d'API Financement(1) pour un prêt immobilier de € sur une durée de 25 ans. Soit 300 mensualités de € au taux de % hors assurance et € d'assurance par mois (100% du capital emprunté au titre du décès, invalidité, perte totale irréversible d'autonomie et incapacité temporaire de travail). Aucun versement, de quelle que nature que ce soit, ne peut être exigé d'un particulier, avant l'obtention d'un ou plusieurs prêts d'argent. Pour tout prêt immobilier, l'emprunteur dispose d'un délai de réflexion de 10 jours. L'achat est subordonné à l'obtention du prêt : s'il n'est pas obtenu, le vendeur doit lui rembourser les sommes versées.
(1) Simulation proposée par API Financement - En savoir plus
* Les honoraires d'agence seront intégralement à la charge du vendeur.
Immeuble IDAIA, Rue Amédée Barbotteau, Moudong Sud, 97122 Baie Mahault
Vous souhaitez faire une visite ou poser une question ? Contactez-nous !










